top of page
Projetos
Escritório
Premiações
Contato
More
Use tab to navigate through the menu items.
SEDE OGILVY BRASIL
Voltar
RECEPÇÃO
OGILVY | Urbixx Arquitetura
press to zoom
RECEPÇÃO
OGILVY | Urbixx Arquitetura
press to zoom
RECEPÇÃO
OGILVY | Urbixx Arquitetura
press to zoom
SALA DE REUNIÃO
OGILVY | Urbixx Arquitetura
press to zoom
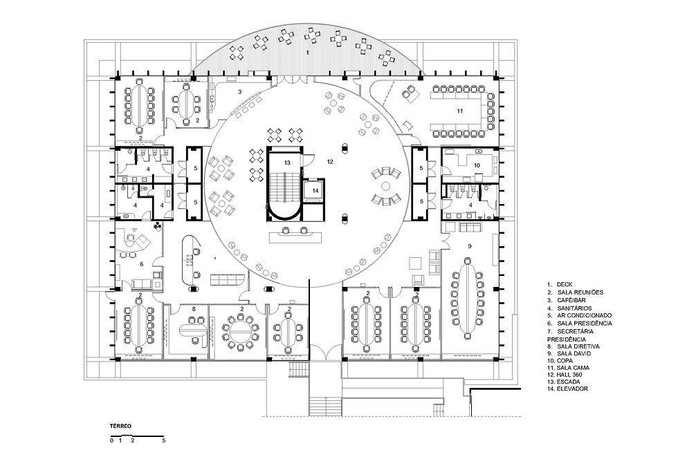
PLANTA TÉRREO
OGILVY | Urbixx Arquitetura
press to zoom
bottom of page